PROYECTO DE PROPUESTA DE REFORMA EN MONTAÑA LA DATA

vectorial 14

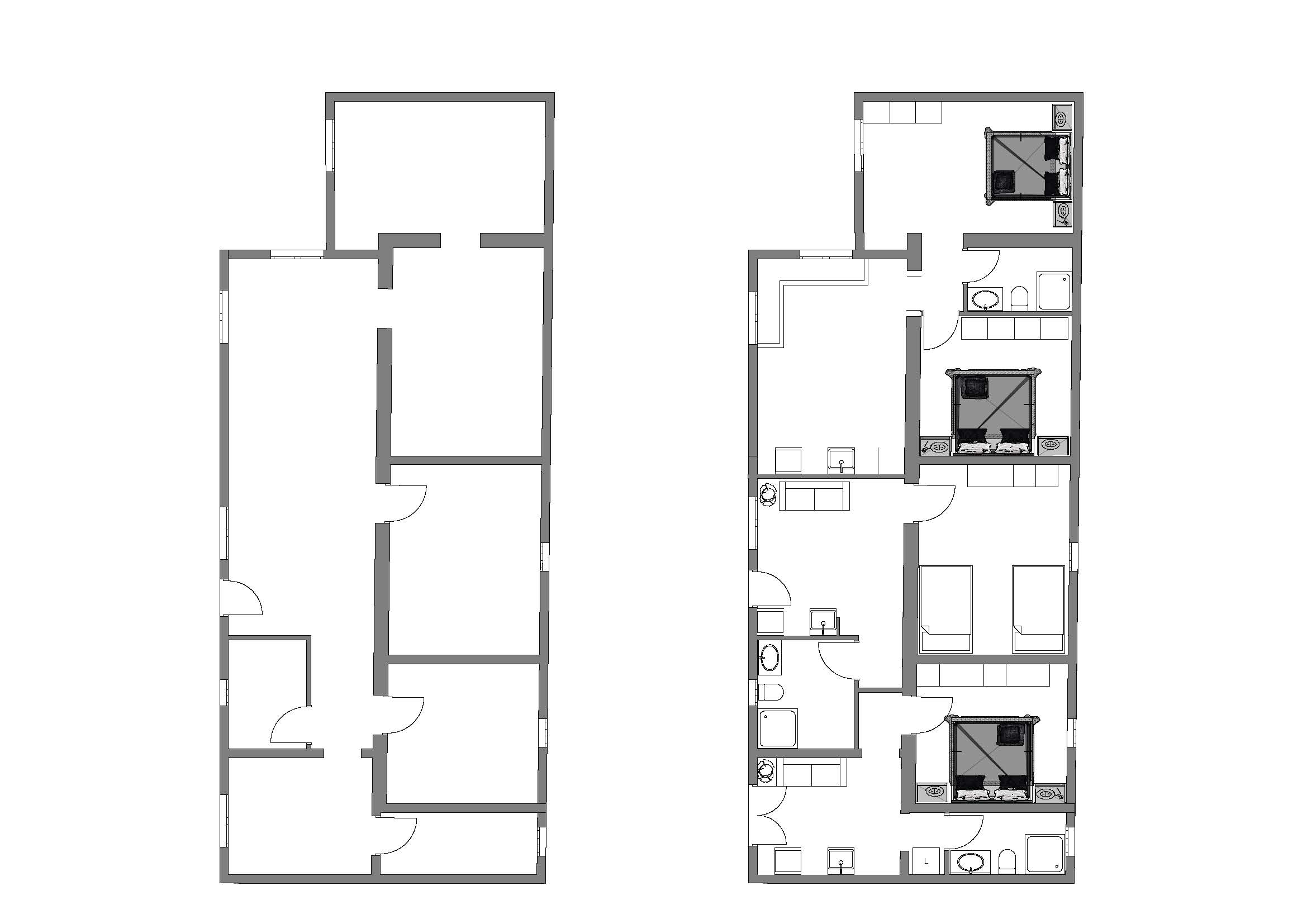
Propuesta de reforma de vivienda antigua en Montaña La Data, T.M. de San Bartolomé de Tirajana. Año 2020
Se propone la división de la vivienda en varios apartamentos manteniendo la estructura general. Cada uno de los apartamentos resultantes tendrá uso privado de terraza exterior. Ideal para rentabilizarlo en alquiler.

Logos de las entidades cuyo proyecto es financiado por la Unión Europea – NextGenerationEU

«Financiado por la Unión Europea – NextGenerationEU. Sin embargo, los puntos de vista y las opiniones expresadas son únicamente los del autor o autores y no reflejan necesariamente los de la Unión Europea o la Comisión Europea. Ni la Unión Europea ni la Comisión Europea pueden ser consideradas responsables de las mismas»